Details merken teilen neue Suche drucken << zurück zur Ergebnisliste

Urban Living in Floridsdorf

7
4
IMG_6513
IMG_6522
IMG_6529
IMG_6530
IMG_6539
IMG_6534
Grundriss
2_VISUALISIERUNG
MöblierungsbeispielA
1_VISUALISIERUNG
MöblierungsbeispielB
Lageplan
In attraktiver Lage des 21. Bezirks entsteht in der Brünner Straße 105 ein modernes, 7-geschoßiges Wohnhaus mit insgesamt 20 hochwertig ausgestatteten Wohneinheiten. Das Projekt überzeugt durch eine gelungene Kombination aus zeitgemäßer Architektur, energieeffizienter Bauweise und komfortabler Ausstattung.

Gebäude & Allgemeinbereiche
Das Neubauprojekt verfügt über eine durchdac...
Mehr lesen
In attraktiver Lage des 21. Bezirks entsteht in der Brünner Straße 105 ein modernes, 7-geschoßiges Wohnhaus mit insgesamt 20 hochwertig ausgestatteten Wohneinheiten. Das Projekt überzeugt durch eine gelungene Kombination aus zeitgemäßer Architektur, energieeffizienter Bauweise und komfortabler Ausstattung.

Gebäude & Allgemeinbereiche
Das Neubauprojekt verfügt über eine durchdachte Grundrissgestaltung und erfüllt sämtliche aktuellen Standards in Bezug auf Wärme-, Schall- und Brandschutz. Im Erdgeschoss stehen 4 Garagenstellplätze (separat zu erwerben um € 29.500,- pro Stellplatz), Fahrradabstellplätze sowie ein großzügiger Kinderspielraum zur Verfügung. Die Erschließung erfolgt über zwei moderne, barrierefreie Aufzüge.

Freiflächen & Außenanlagen
Je nach Wohnung stehen Balkone und/oder Terrassen mit Holzrosten und blickdichten Trennwänden zur Verfügung. Die Außenanlagen sind begrünt und mit einer ansprechenden Wegeführung sowie Beleuchtung ausgestattet.

Ausstattung der Wohnungen
Böden: Hochwertiger Echtholzparkett in Wohnräumen, Feinsteinzeugfliesen in Bad, WC und Vorraum
Bäder: Moderne Sanitärausstattung, teilweise mit Badewanne und/oder bodengleicher Dusche, Handtuchheizkörper, Markenarmaturen
Fenster: Kunststofffenster mit 3-fach-Verglasung, elektrische Außenrollos
Heizung: Fußbodenheizung über zentrale Luft-Wärmepumpe, Bad zusätzlich mit Handtuchheizkörper
Sonnenschutz: Elektrisch bedienbare Außenrollos bei allen Fenstern
Sicherheit: Wohnungseingangstüren mit Sicherheitsstandard RC3 und Mehrfachverriegelung

Lage
Die Brünner Straße bietet eine sehr gute Infrastruktur mit zahlreichen Einkaufsmöglichkeiten, Gastronomie und öffentlicher Verkehrsanbindung (Straßenbahnlinie 31, Buslinien). Grünflächen und Freizeitmöglichkeiten befinden sich in unmittelbarer Nähe.

Dieses Objekt ist ideal für alle, die modernen Wohnkomfort in einer gut angebundenen Stadtlage suchen – ob als Eigennutzer oder Anleger.


Kontaktieren Sie uns noch heute für weitere Informationen oder einen Besichtigungstermin!
Weniger lesen
Kaufpreis:
€ 699.000,00
Provision:
€ 20.970,00 exkl. USt.
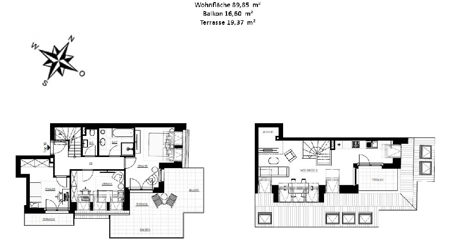
Wohnfläche:
ca. 93,00 m²
Objektgruppe
Eigentumswohnung
Obj.Nr.
141/83847
Adresse
A - 1210 Wien, Brünner Straße 105/DG
Zimmer
4
Stockwerk
DG
Balkon
ca. 18,13 m²
Terrasse
ca. 26,03 m²
Heizung
Luftwärmepumpe
Weiteres
Lift, Balkon, Terrasse
beziehbar ab
Q1 2026
Heizwärmebedarf
27,1 kWh/m²a
Energieklasse
fGEE
0,74
Heizwärmebedarf fGEE
Ihr Ansprechpartner
<b>Veronika Vollmann</b>
Diese Immobilie anfragen
Anrede
Vorname*
Nachname*
E-Mail*
Telefon
Kommentar
Mit * gekennzeichnete Felder sind Pflichtfelder
Provided by TopREAL
Dieses Objekt per E-Mail weiterempfehlen
Absender*
Empfänger E-Mail-Adresse*
Nachricht
Mit * gekennzeichnete Felder sind Pflichtfelder