Details merken teilen neue Suche drucken << zurück zur Ergebnisliste

NEUBAU I Lend ist Trend - Modern und zukunftsorientiert Wohnen

IMG_1876
IMG_2769
IMG_2754
IMG_2768
IMG_2767
IMG_2756
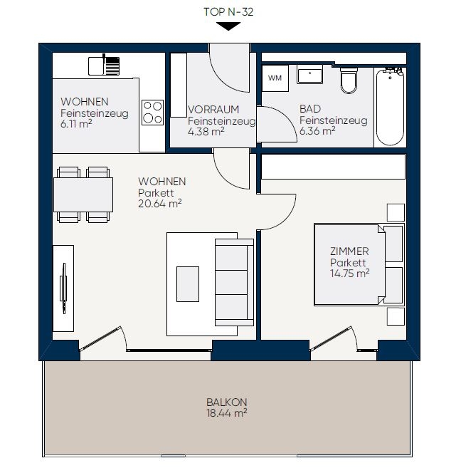
Grundriss Top N-32
Lageplan
Informieren Sie sich gleich auf unserer Projekthomepage www.median-graz.at

Diese tolle 2-Zimmer-Wohnung befindet sich im 3ten Stockwerk und bietet auf ca. 52,24 m² folgende Raumaufteilung:

- Vorraum
- geräumige Wohnküche mit Zugang zum Balkon
- Schlafzimmer
- Badezimmer mit Badewanne und WC
- großzügiger Balkon mit rd. 18,44 m²

Sämtliche Wohneinheiten ve...
Mehr lesen
Informieren Sie sich gleich auf unserer Projekthomepage www.median-graz.at

Diese tolle 2-Zimmer-Wohnung befindet sich im 3ten Stockwerk und bietet auf ca. 52,24 m² folgende Raumaufteilung:

- Vorraum
- geräumige Wohnküche mit Zugang zum Balkon
- Schlafzimmer
- Badezimmer mit Badewanne und WC
- großzügiger Balkon mit rd. 18,44 m²

Sämtliche Wohneinheiten verfügen über hochwertige Parkettböden und bestechen durch ihre großartige Raumaufteilung sowie den großzügigen Freiflächen. Zusätzlich dürfen sich die Mieter des Medians über eine exklusive Einbauküche samt hochwertiger Geräte freuen. Ein Kellerabteil ist dieser Wohnung zugeordnet und im Mietpreis inbegriffen.

Die Bruttomiete setzt sich zusammen aus: Hauptmietzins, Betriebskosten und Umsatzsteuer.
Heizkosten, Kühlkosten und Energiekosten sind nicht enthalten.

ZUKUNFTSORIENTIERTE ENERGIELÖSUNGEN:
Die Wohnung wird mittels Sole-Wasser-Wärmepumpen über Fußbodenheizung beheizt und gekühlt. Die Warmwasseraufbereitung erfolgt zentral. Energieeffiziente und ressourcenschonende Technologien schaffen höchste Lebensqualität. Als besonderes Highlight genießen die Bewohner der Anlage im Sommer eine Fassadenkühlung durch adiabatische Wasserzerstäubung.

PARKEN:
Optional besteht die Möglichkeit, Parkplätze in der Tiefgarage anzumieten.


Lage und Infrastruktur:
Inmitten des neuen Stadtquartiers "SmartCity“ gelegen, bietet das Projekt Median seinen Bewohnern ein innovatives Gesamtkonzept. Flexible und umweltschonende Mobilitätslösungen sowie erneuerbare Energien stehen im Fokus der Belebung des ehemaligen Industriegebiets nördlich des Grazer Hauptbahnhofs. Mit der neugeschaffenen Verlängerung der Straßenbahnlinie 6 ins Zentrum des Areals, wurde eine direkte Anbindung zum Grazer Stadtzentrum sowie dem linken Murufer realisiert. Das Naherholungsgebiet Plabutsch sowie verschiedene Wander- und Spazierwege laden zur Erholung im Grünen ein.

Mietbeginn:
ab sofort

Mietdauer:
Auf 5 Jahre befristet


Weitere Immobilienangebote finden Sie unter www.rustler.eu/immobiliensuche
Weniger lesen
Gesamtmiete:
€ 766,21
Provision:
provisionsfrei exkl. USt.
Kaution:
€ 2.300,00
Wohnfläche:
ca. 58,69 m²
Objektgruppe
Mietwohnung
Obj.Nr.
141/84209
Adresse
A - 8020 Graz
Zimmer
2
Balkon
ca. 18,44 m²
Bad
1
WC
1
Heizung
Fußbodenheizung
Weiteres
Lift, Balkon, Keller
beziehbar ab
Ab sofort
Heizwärmebedarf
21,31 kWh/m²a
Energieklasse
fGEE
0,77
Heizwärmebedarf fGEE
Ihr Ansprechpartner
<b>Arber  Licaj </b>
Diese Immobilie anfragen
Anrede
Vorname*
Nachname*
E-Mail*
Telefon
Kommentar
Mit * gekennzeichnete Felder sind Pflichtfelder
Provided by TopREAL
Dieses Objekt per E-Mail weiterempfehlen
Absender*
Empfänger E-Mail-Adresse*
Nachricht
Mit * gekennzeichnete Felder sind Pflichtfelder